Topトップページ

  • About us満福不動産について
  • Online Service来店不要で内覧からご契約まで
  • Company Information会社概要

物件を探す

売りたい・貸したい方はこちら

  1. Blogスタッフブログ
  2. Contactお問い合わせ
  3. プライバシーポリシー

高崎市周辺の賃貸・売買物件をご紹介

閉じる

一戸建て新後閑町貸住宅

  • LINE
  • MAIL
  • LINE

高崎駅徒歩圏内、魅力的な一戸建て物件!

基本情報
特徴

新後閑町貸住宅RENT

賃料

8.5万円

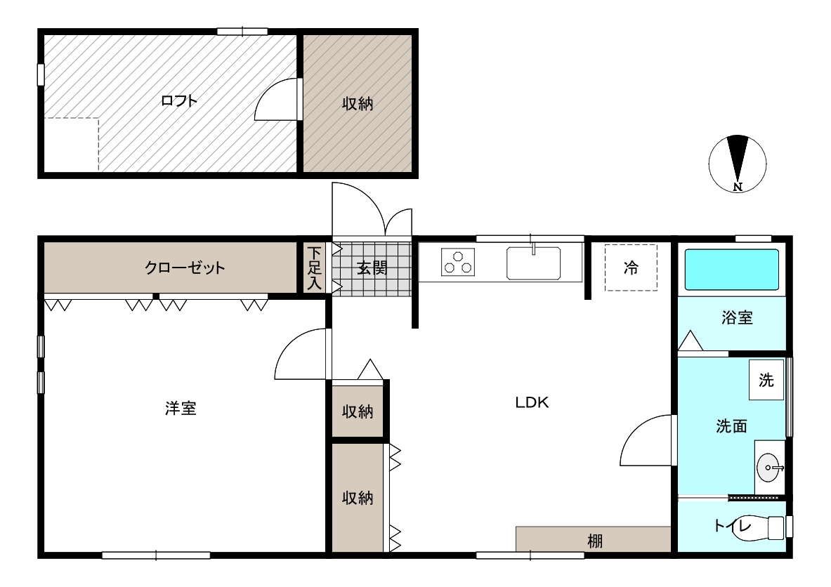
間取り

1LDK洋 8.2帖/LDK 11.5帖/ロフト 4.6帖/屋根裏収納3.2帖

階数/階
平屋建
交通

上信電鉄上信線 南高崎 徒歩6分 /上信電鉄上信線 高崎 徒歩15分 /上信電鉄上信線 佐野のわたし 徒歩15分

築年月
2008年01月
主要採光面
南向き
建物構造
木造
種目
貸戸建住宅
専有面積
65.30㎡
管理費等
-
駐車場
有/無料/1台 ※大型車は要確認
駐輪場
-
バイク置き場
-
条件等
-
総戸数
1
敷金
2ヶ月
礼金
2ヶ月
保証金
-
取引態様
代理
契約期間
2
更新料
新賃料の1ヶ月分/更新事務手数料20,000円(消費税別途)
現況
仲介手数料
1.1ヶ月
入居可能時期
即入居可
掲載日
2026年02月

その他

保険等
加入要/2年間 20,000円
一時金等
賃貸保証加入要/ 初回保証料:月額賃料等の100%(月額保証料:月額賃料等の1%)

高崎駅徒歩圏内に位置するこの一戸建て物件は、開放感あふれる広々とした1LDK+ロフトを提供しています。建物前には駐車場が1台分完備されており、お車をお持ちの方にも便利な立地です。また、周囲は静かな住宅街に位置し、穏やかな環境での生活が約束されています。

家具付きという利便性から、新生活をスムーズにスタートできます。間取りは単身者から少人数家族まで幅広く対応可能な設計となっており、充実した収納スペースも特長です。さらに、温水洗浄暖房便座やシステムキッチン、食洗器、シャワー付洗面台など、設備も充実していますので、快適な日常生活を送ることができます。

快適な生活をお求めの方にお勧めの物件です。是非この機会にご検討ください。 

特徴や設備

設備
B・T別/シャワー/追焚機能/温水洗浄便座/シャワー付洗面化粧台/洗面所独立/ガスコンロ付/3口以上コンロ/グリル/食器洗浄乾燥機/収納スペース/全居室収納/シューズボックス/照明器具/家具付き/室内洗濯機置場/給湯/プロパンガス/ロフト/全居室フローリング/エアコン
特徴
閑静な住宅街
備考
■ダイニングテーブル&椅子4脚・カップボード・電動ソファ・照明器具・ロールスクリーン・棚・エアコン1基(洋室)はサービス品です。故障時は、借主にて修理・交換となります。 ■築年数は増改築年月です。登記簿上の築年数とは異なります。

この物件について問い合わせる

027-386-4912 027-386-4912
@manpuku_fudosan @manpuku_fudosan
満福不動産

LINEでお問い合わせいただけます。

@manpuku_fudosan

line

メールでのお問い合わせやご相談はこちらから

理想の物件探しのお手伝いをさせてください。物件管理のご相談や、物件を売りたい・貸したい方もお気軽にご連絡ください。

CONTACT US